Quadrilocale in vendita

Genova, Via Luciano Zamperini - Bolzaneto
€ 64.000
Prezzo aggiornato
4 locali 4 locali
85 Mq 85 Mq
1 bagno 1 bagno

Quadrilocale in vendita

Genova, Via Luciano Zamperini - Bolzaneto

Descrizione annuncio

Nel cuore di Bolzaneto, precisamente in Via Zamperini proponiamo un appartamento di 85 mq situato in una posizione strategica e comoda per chi desidera vivere vicino ai principali servizi e mezzi di trasporto.

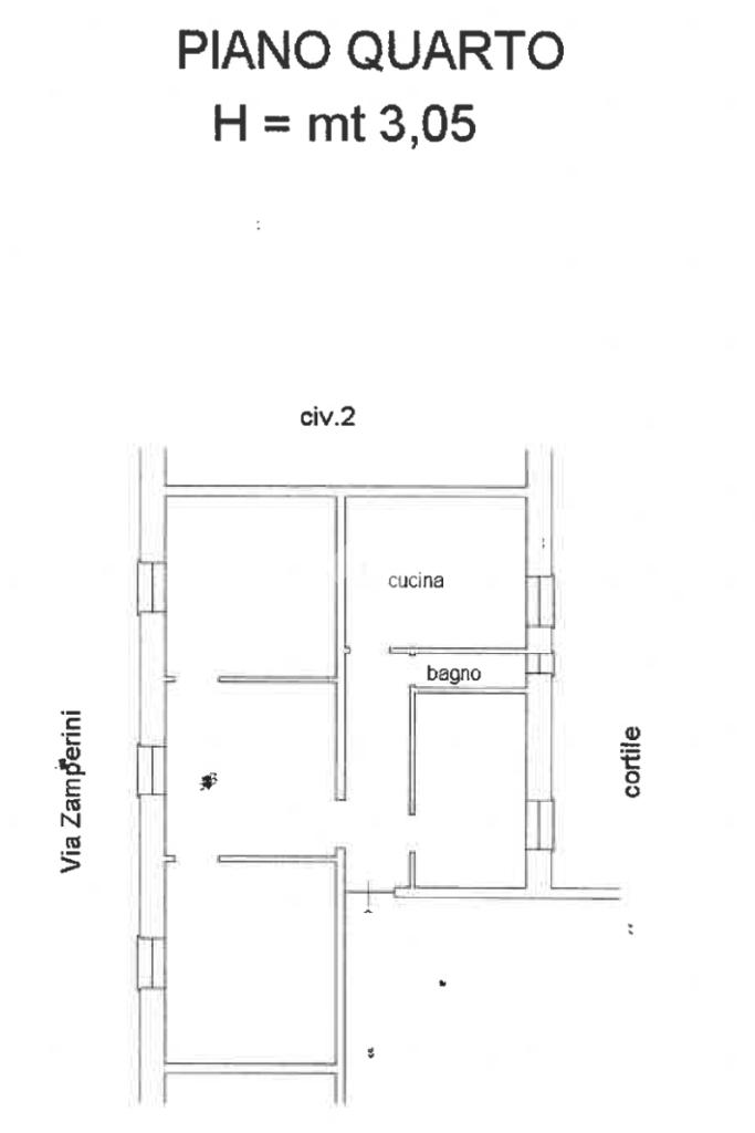
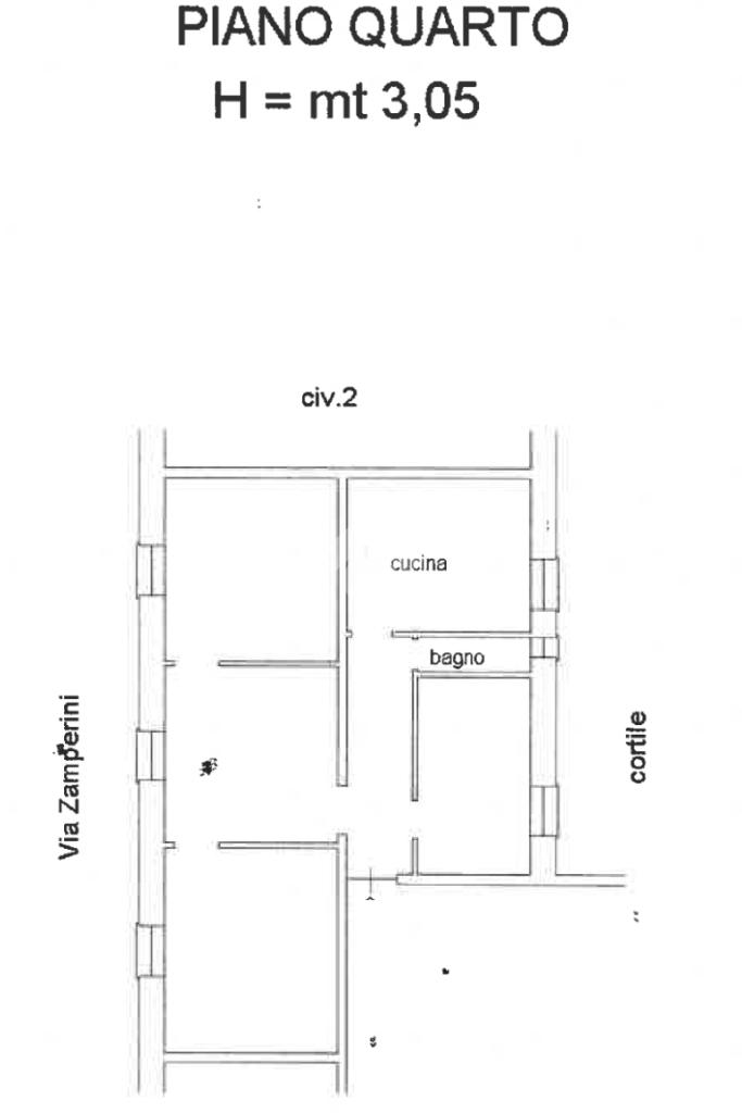
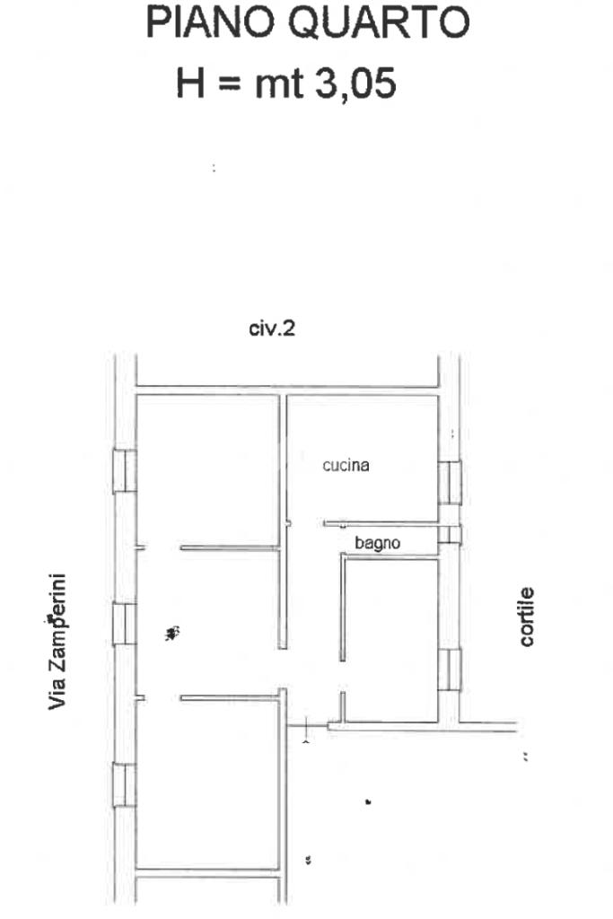
L'immobile, posto al piano medio di un edificio dotato di ascensore, offre una distribuzione funzionale degli spazi ed è così composto: Salotto, una cucina, tre camere da letto e un bagno. Completa la proprietà un balcone.

L'appartamento è da ristrutturare, permettendo di personalizzare gli ambienti secondo le proprie esigenze e gusti. Le basse spese di gestione rappresentano un ulteriore vantaggio per chi cerca una soluzione abitativa conveniente.

Questa opportunità è ideale per famiglie o investitori che desiderano un immobile in una zona centrale e ben collegata.

Mostra tutto

Nelle vicinanze

Trasporto pubblico Trasporto pubblico
stazione di Genova Bolzaneto
stazione di Genova Bolzaneto
270 m
stazione di Genova Rivarolo
stazione di Genova Rivarolo
2,4 Km
Reta 2 / Vigili del Fuoco
Reta 2 / Vigili del Fuoco
20 m
Trasporto pubblico
70 m
stazione di Genova San Biagio
stazione di Genova San Biagio
2,9 Km
Ricariche auto elettriche Ricariche auto elettriche
Genova Polonio | EnelX
240 m
Mercato Ortofrutticolo di Bolzaneto | EnelX
1,1 Km
Genova Negrotto Cambiaso | EnelX
1,9 Km
Genova San Biagio | EnelX
1,9 Km
Scuole Scuole
Istituto Comprensivo Bolzaneto
230 m
Gaslini
570 m
Istituto Santa Caterina
660 m
Istituto Superiore Statale Gastaldi-Abba
890 m
Scuola secondaria Statale di primo grado Tosca Bercilli
1,0 Km
Farmacia Farmacia
Farmacia San Francesco
160 m
Farmacia Moderna
220 m
Farmacia Centrale Dott. Guarnieri
380 m
Farmacia al Diamante
690 m
Santarosa
850 m
Ospedali Ospedali
P. A. Croce Bianca di Genova Bolzaneto
260 m
Supermercati Supermercati
Basko
120 m
Carrefour Express
140 m
Metà
180 m
Ekom
190 m
OK Sigma
240 m
Negozi Negozi
Negozi
20 m
La Casa del Pane
80 m
Panificio Bruzzone
190 m
Pasticceria Focacceria Le Delizie
280 m
Panificio Teglia
870 m
Bar Bar
Bar Pippo
90 m
Bar
200 m
Bar Fuori Binario
260 m
Europa
260 m
Bar Lo Spuntino della Stazione
300 m
Ristoranti Ristoranti
Trattoria Agnese
260 m
Ristorante Arcani
260 m
Pizzeria Fior di Margherita
450 m
Pizzeria Trattoria da Fabrizio
530 m
La Sosta
720 m
Mostra tutto

Caratteristiche

Rif.:
61137724
Piano:
4 di 6 con ascensore (Piano medio)
Balconi:
1
Camere da letto:
3
Arredamento:
Assente
Condizionamento:
Assente
Mostra tutto
Prezzo Prezzo
€ 64.000
Rata mutuo Rata mutuo
€ 302 / mese
Spese annue Spese annue
€ 800
Proponi il tuo prezzoProponi il tuo prezzo

Classe Energetica

G
G
G
G
G
G
G
G
G
Anno di costruzione:
1967
Riscaldamento:
Autonomo
Tipo impianto:
A radiatori
Tipo alimentazione:
Metano

Prezzo ridotto di €1 (8%%)

Ti interessa visionare l'immobile?

Fissa un appuntamento  Fissa un appuntamento

Richiedi informazioni

Clicca su Leggi per aprire l'informativa
* Questi campi sono obbligatori

Calcola il tuo mutuo

Semplice e senza impegno
Anticipo

( % )
Mutuo

( % )

pochi semplici passi

inserisci i tuoi dati
Questionario completato
Grazie per aver richiesto un appuntamento senza impegno con un nostro Consulente del Credito e Assicurativo.

Hai inserito correttamente tutti i dati necessari e a breve riceverai una e-mail con un link da convalidare per inviare i tuoi dati.
Affiliato
Studio Sant'Olcese Srl
Via Poirè, 75 16010 Sant'Olcese (GE)

Il nostro staff


  • Emanuele Ghiglino
    Affiliato
Via Poirè, 75 16010 Sant'Olcese (GE)
Zona: Sant'Olcese
Mostra su mappa
Orari: Dal Lunedì al Venerdì 9,00 -12,30 15,00 - 19,30 Sabato 9,00-17,30
Affiliato
Studio Sant'Olcese Srl
Via Poirè, 75 16010 Sant'Olcese (GE)

2026 Tecnocasa Franchising S.p.A. - P. IVA 08365160152 - Via Monte Bianco 60/A 20089 Rozzano (MI). Ogni agenzia ha un proprio titolare ed è autonoma. Privacy policy | Policy utilizzo | Cookie policy